Urban Development Plan
Housing Development Plan
Housing
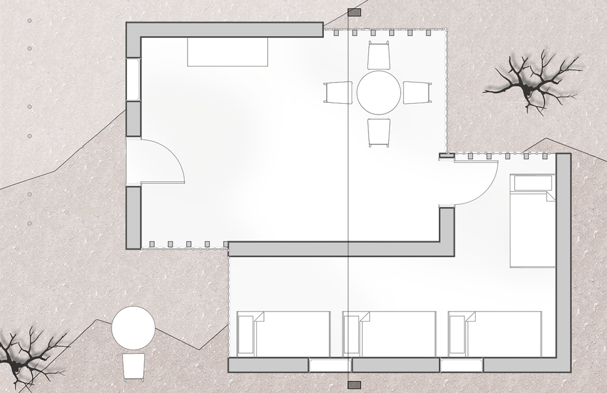
Housing Ground Floor Plan
North Elevation
North Section
Wall Section
Exterior of Housing
Community Gardens
Medical
Medical Facility Ground Floor Plan
North Elevation
East Elevation
East Section
North Section
Medical Room Waiting Area
Medical Room
Outdoor Seating
Reception Waiting Area
School
School Ground Floor Plan
Path and Spatial Diagrams
West Wing Axon
North Elevation
East Elevation
North Section
West Section
Wall Section
Classroom
Computer Lab
Gathering/Recreation Space
Cafeteria Break Area

You may also like

Back to Top